価格 |
980万円 |
||
|---|---|---|---|
所在地 |
泉南市兎田 |
交通 |
JR阪和線新家駅まで 徒歩17分 |
土地面積 |
261.01m²(78.95坪) |
建物面積 |
222.97m²(67.44坪) |
建物構造 |
鉄骨・木造スレート葺 |
地上階 |
2階 |
築年月 |
1971/10(築54年) |
総戸数 |
- |
現況 |
空家 |
引渡時期 |
相談 |
利回り(現状・予想) |
- |
年間収入 |
- |
お電話でのお問い合わせ
物件コード:11693
お電話でお問い合わせの際は、物件コードをお伝えください。
0120-100-873
営業時間:9:30 AM - 6:00 PM
定休日:第1,3,5火曜・毎週水曜
ポイント
POINT
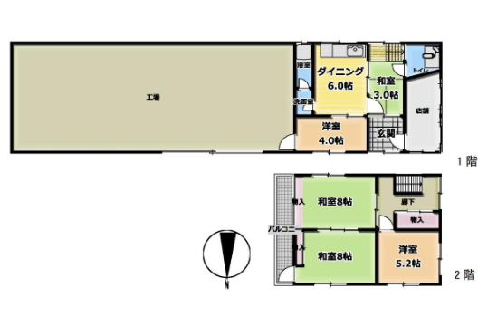
●工場付き住宅5DK ●角地 ●間口広々 ●車やバイクの整備工場向き
物件詳細DETAIL
都市計画 |
市街化調整区域 |
用途地域 |
無指定 |
|---|---|---|---|
建ぺい率 |
60% |
容積率 |
200% |
地目 |
宅地 |
土地権利 |
所有権 |
私道面積 |
- |
セットバック |
|
接道 |
北 4m(幅員) 公道 31m(接面)
西 3.2m(幅員) 公道(2項道路) 6.8m(接面) |
取引態様 |
仲介 |
設備/備考 |
空家、駐車場、公営水道・汲取・プロパンガス、角地、元:車整備工場、令和7年固定資産税33,999円 |
※掲載されている物件データが現状と異なる場合は現状を優先します。
※利回りは、1年間の賃料収入を除して求めたものです。
※表示の賃料収入が将来にわたり確実に得られる保証はございません。
※利回りは、公租公課・共益費等、該当物件を維持するために必要な費用を控除する前の収入で計算しています。
周辺地図MAP
株式会社阪南住宅COMPANY
所在地 |
大阪府阪南市尾崎町53番地の1 |
||
|---|---|---|---|
免許番号 |
大阪府知事免許(8)第41588号 |
||
会員 |
(公社)全国宅地建物取引業保証協会
(一社)大阪府宅地建物取引業協会
関西不動産情報センター
阪南市空家対策委員会/岬町空家バンク登録事業者
|
||
電話番号 |
0120-100-873 |
FAX番号 |
072-471-2299 |
営業時間 |
9:30 AM - 6:00 PM |
定休日 |
第1,3,5火曜・毎週水曜 |

