価格 |
1,890万円 |
||
|---|---|---|---|
所在地 |
泉南市中小路2丁目 |
||
交通 |
南海本線岡田浦駅まで 徒歩23分 |
||
土地面積 |
129.83m²(39.27坪) |
建物面積 |
104.75m²(31.68坪) |
建物構造 |
木造 |
地上階 |
2階 |
間取 |
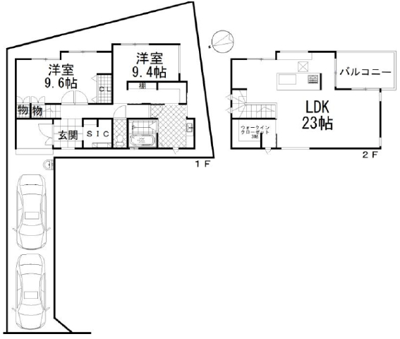
2LDK+WIC・SIC |
築年月 |
2019/04(築6年) |
駐車場 |
2台(車種による) |
お電話でのお問い合わせ
物件コード:11798
お電話でお問い合わせの際は、物件コードをお伝えください。
0120-100-873
営業時間:9:30 AM - 6:00 PM
定休日:第1,3,5火曜・毎週水曜
ポイント
POINT
●全居室約6帖以上・収納付き2LDK+WIC・SIC ●平成31年築 ●リフォーム履歴有り(クロス一部張替、洗面化粧台交換、ハウスクリーニング等) ●駐車スペース2台分(車種による) ●南向きバルコニーにつき日当たり良好 ●広々LDK23帖、アイランドキッチン ●温水洗浄便座、システムキッチン有り
物件詳細DETAIL
現況 |
空家 |
引渡時期 |
相談 |
|---|---|---|---|
都市計画 |
市街化区域 |
用途地域 |
準工業地域 |
建ぺい率 |
60% |
容積率 |
200% |
地目 |
宅地 |
私道面積 |
- |
土地権利 |
所有権 |
セットバック |
|
接道 |
西 6m(幅員) 公道 4m(接面) |
||
学区 |
西信達小学校
西信達中学校 |
取引態様 |
仲介 |
設備/備考 |
空家、駐車場2台(車種による)、公営水道、浄化槽、都市ガス、司法書士指定 |
※掲載されている物件データが現状と異なる場合は現状を優先します。
周辺地図MAP
ローンシミュレーション
LOAN SIMULATION
- 物件の価格
- 1,890万円
- 月々の返済額
- 円
- 年間の返済額
- 円
- 返済総額
- 円
- 利息合計
- 円
万円
%
年
※毎回の返済額が開始から終了まで均等となる「元利均等返済」で算出しています。
※金利は期間中固定となる固定金利を採用しています。
※月々の返済額は小数点以下を繰り上げしています。
※シミュレーションでの結果は、あくまでも目安で、概算になります。実際にローン契約をする際は、詳細を金融機関にご確認ください。
※実際のローン契約時には諸費用・税金(手数料や印紙税、保証料など)が別途かかりますので、契約の際にご確認ください。
株式会社阪南住宅COMPANY
所在地 |
大阪府阪南市尾崎町53番地の1 |
||
|---|---|---|---|
免許番号 |
大阪府知事免許(8)第41588号 |
||
会員 |
(公社)全国宅地建物取引業保証協会
(一社)大阪府宅地建物取引業協会
関西不動産情報センター
阪南市空家対策委員会/岬町空家バンク登録事業者
|
||
電話番号 |
0120-100-873 |
FAX番号 |
072-471-2299 |
営業時間 |
9:30 AM - 6:00 PM |
定休日 |
第1,3,5火曜・毎週水曜 |

