価格 |
198万円 |
||
|---|---|---|---|
所在地 |
泉南郡岬町深日 |
||
交通 |
南海多奈川線深日港駅まで 徒歩4分 |
||
土地面積 |
187m²(56.56坪) |
建物面積 |
116.88m²(35.35坪) |
建物構造 |
木造 |
地上階 |
2階 |
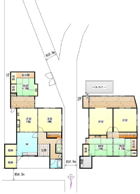
間取 |
7DK |
築年月 |
1973/08(築52年) |
駐車場 |
無 |
お電話でのお問い合わせ
物件コード:11987
お電話でお問い合わせの際は、物件コードをお伝えください。
0120-100-873
営業時間:9:30 AM - 6:00 PM
定休日:第1,3,5火曜・毎週水曜
ポイント
POINT
●閑静な住宅街内 ●角地につき通風良好 ●南向きバルコニーにつき日当たり良好 ●部屋数豊富な7DK ●南海多奈川線深日港駅まで徒歩約4分 ●オークワまで徒歩約8分 ●コンビニまで徒歩約9分
物件詳細DETAIL
現況 |
空家 |
引渡時期 |
相談 |
|---|---|---|---|
都市計画 |
市街化区域 |
用途地域 |
第二種中高層住居専用地域 |
建ぺい率 |
60% |
容積率 |
200% |
地目 |
宅地 |
私道面積 |
- |
土地権利 |
所有権 |
セットバック |
|
接道 |
西 4.6m(幅員) 公道
南西 3.8m(幅員) 公道
北 4.3m(幅員) 公道 |
||
学区 |
深日小学校 1,200m
岬中学校 1,700m |
取引態様 |
仲介 |
設備/備考 |
空家、駐車場なし、公営水道、汲取、個別プロパンガス、司法書士指定 |
※掲載されている物件データが現状と異なる場合は現状を優先します。
周辺地図MAP
ローンシミュレーション
LOAN SIMULATION
- 物件の価格
- 198万円
- 月々の返済額
- 円
- 年間の返済額
- 円
- 返済総額
- 円
- 利息合計
- 円
万円
%
年
※毎回の返済額が開始から終了まで均等となる「元利均等返済」で算出しています。
※金利は期間中固定となる固定金利を採用しています。
※月々の返済額は小数点以下を繰り上げしています。
※シミュレーションでの結果は、あくまでも目安で、概算になります。実際にローン契約をする際は、詳細を金融機関にご確認ください。
※実際のローン契約時には諸費用・税金(手数料や印紙税、保証料など)が別途かかりますので、契約の際にご確認ください。
株式会社阪南住宅COMPANY
所在地 |
大阪府阪南市尾崎町53番地の1 |
||
|---|---|---|---|
免許番号 |
大阪府知事免許(8)第41588号 |
||
会員 |
(公社)全国宅地建物取引業保証協会
(一社)大阪府宅地建物取引業協会
関西不動産情報センター
阪南市空家対策委員会/岬町空家バンク登録事業者
|
||
電話番号 |
0120-100-873 |
FAX番号 |
072-471-2299 |
営業時間 |
9:30 AM - 6:00 PM |
定休日 |
第1,3,5火曜・毎週水曜 |

